Modern Redux
Belmont, MA
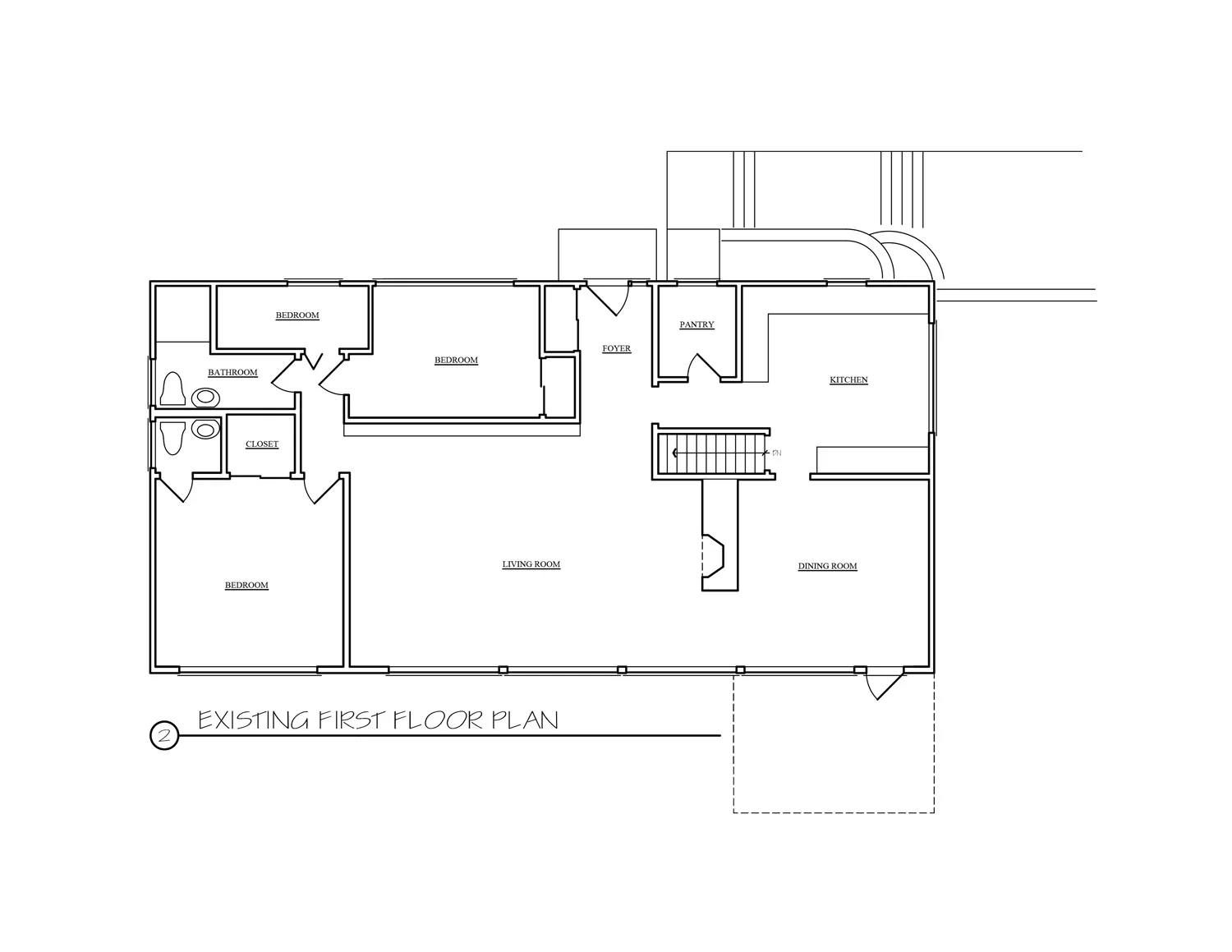
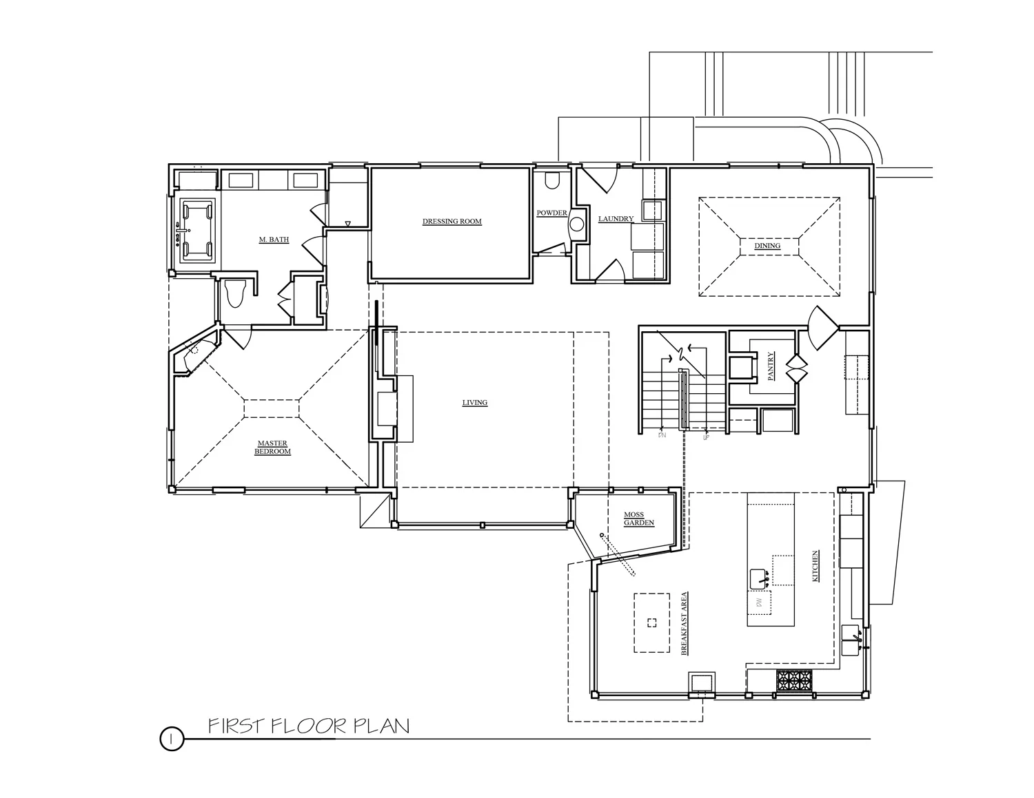
Project scope
Terrace Level: Addition: (256 sq. ft. )
Existing Living Space to be Renovated
(1043 sq.ft. )
First Floor: Addition (512 sq. ft.)
Existing to be Renovated (1568 sq. ft.)
Second Floor: Addition (776 sq. ft.)
Our charge
Originally built in 1955, this modern box has hardly been touched since. The 28’ x 56’ two story structure was built into a hill with a short end facing the street. The long north face has most of its lower half the hill with the main entry on that side at the upper (first floor) level. The long south wall is a “walk-out” elevation opening out on to a lovely garden with access at the lower (Terrace ) level. The street facade is a single-car garage door and little else. The front door is accessed by a stepped path leading from the driveway to a landing about 20’ along the north side. Curb appeal was not paramount to whoever built this home. Now owned by a young family, they charged Incite with adding additional space; better flow and providing a visitor friendly entry while maintaining the modern aesthetic. Our addition, placed off the south east corner of the home, creates a new entry with foyer at the street/terrace level. The addition also contains a guest room, and a mudroom was created in the old utility space. A new stair links the foyer to the first floor and an all new 2nd floor. The addition at the first floor contains the new kitchen and breakfast area oriented to the garden. The old kitchen space is to be converted to the dining room. Other changes can be seen in the “before” and “after” floor plans. The all new 2nd floor provides bedrooms for the 2 kids and an office for the parents.
